Eladó családi ház Pilisborosjenő 190 000 000 Ft

Leírás

Természet közeli, különleges hangulatú otthon eladó Pilisborosjenőn!



Nagykevélyre és az Ezüsthegyre panorámás, új építésű, családi házas környéken eladó ez az impozáns ingatlan. A ház külső megjelenése egyedi, a zöld növényzet, a fa gerendák és a teraszok meleg, barátságos, mediterrán hangulatot teremtenek. A 775 nm-es kert dísznövényekkel, bokrokkal, virágokkal beültetett, késő esti órákban hangulatos fényekkel megvilágított. A kialakított pihenőrészen bográcsozó, tűzrakóhely, hintaágy, kerti étkezőhely található. A térkövezett terasz tökéletes helyszín nyári estékhez, baráti, családi összejövetelekhez.



A hátsó udvarból kis kertkapun keresztül léphetünk ki a borosjenői patakpartra.



Az udvarban van egy egyállásos garázs padlástérrel, szerelőaknával, telken belül pedig további 3 gépkocsi is kényelmesen elfér.



Az ingatlan rezsiszámlája kedvező a napelemeknek és a klímáknak köszönhetően.



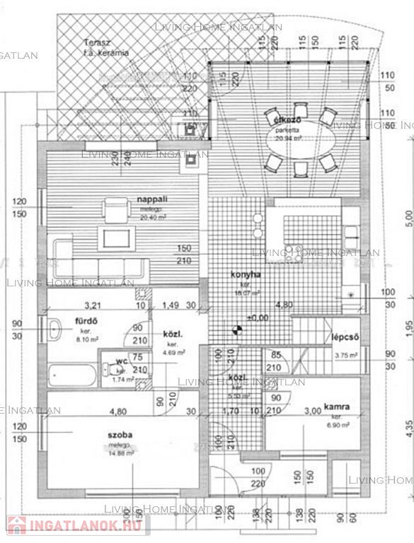
Az ingatlan beosztása:



Pinceszint: nagyobb terület, mely tárolásra alkalmas „borospincével”.



Földszint: előtér, egylégterű, de mégis elszeparált konyha, étkező, nappali, szoba, fürdő, wc, kamra, közlekedő. Ezen a szinten a kertkapcsolat teszi teljessé az otthon érzetét, a belső és a külső terek harmonikusan kapcsolódnak egymáshoz.



Emelet: 3 szoba, gardrób, fürdő, közlekedő. Az erkélykapcsolatos szobából panorámás kilátás nyílik a kertre és a környező hegyekre.



Tetőtér: beépített padlástér, mely szinte teljes értékű lakótérként funkcionálhat, hiszen parkettázott, fűtött, szigetelt. Ideális „játszótér” gyerekeknek. Alacsonyabb belmagassága miatt a terület nincs hozzáadva az összes lakótérhez.



További extrák:    



-kandalló,



-hűtő-fűtő klíma H-tarifa elszámolással,



-napelem (szaldós elszámolással),



-Bosch kazán,



-Elektrolux konyhai gépek,



-öntözőrendszer- külön mérőórával,



-szauna,



-5 személyes jakuzzi.



Családosoknak, fiatal pároknak ajánlom ezt az ingatlant. A közelben kirándulóhelyek, erdei utak és egyéb sportolási lehetőségek is adottak. Néhány perc sétára található buszmegálló, iskola, óvoda és a boltok.



Ha további kérdése van és meg szeretné tekinteni az ingatlant, kérem, keressen akár hétvégén is!



Az alaprajz és az adatok tájékoztató jellegűek.



English:



A home with a special atmosphere close to nature is for sale in Pilisborosjenő!



This impressive property is for sale in a newly built family home neighborhood with panoramic views of Nagykevély and Ezüsthegy. The exterior of the house is unique with green vegetation, wooden beams and terraces creating a warm, friendly, Mediterranean atmosphere. The 775 m² garden is planted with ornamental plants, shrubs and flowers, and is illuminated by atmospheric lights in the late evening hours. The relaxation area features a barbecue, a fire pit, a swing bed, and a garden dining area. The paved terrace is the perfect place for summer evenings and gatherings with friends and family.



From the back yard, a small garden gate leads to the banks of the Borosjenő stream.



The yard has a single-car garage with an attic and a repair pit, and there is room for three more cars on the property.



The property's utility bills are low thanks to solar panels and air conditioning.



Layout of the property:



Basement: large area suitable for storage with a "wine cellar."



Ground floor: entrance hall, open-plan but separate kitchen, dining room, living room, bedroom, bathroom, toilet, pantry, hallway. On this level, the connection to the garden completes the feeling of home, with the interior and exterior spaces harmoniously connected to each other.



First floor: 3 rooms, wardrobe, bathroom, hallway. The room with a balcony offers a panoramic view of the garden and the surrounding mountains.



Attic: built-in attic space, which can function as almost full-fledged living space, as it is parquet-floored, heated, and insulated. Ideal "playground" for children. Due to its lower ceiling height, the area is not added to the total living space.



Additional extras:



-fireplace,



-cooling and heating air conditioning with H-tariff billing,



-solar panels (with balance billing),



-Bosch boiler,



-Electrolux kitchen appliances,



-irrigation system with separate meter,



-sauna,



-5-person jacuzzi.



I recommend this property to families and young couples. There are nearby hiking trails, forest roads, and other sports opportunities. A bus stop, school, kindergarten, and shops are just a few minutes' walk away.



If you have any further questions and would like to view the property, please feel free to contact me, even on weekends!



The floor plan and data are for informational purposes only.



 




Családi ház részletei

Ár: 190 000 000 Ft
Méret: 160 négyzetméter
Azonosító: 11600958
Irodai azonosító: 360651121-401
Telek: 775 négyzetméter
Ingatlan állapota: Felújított
Jelleg: családi ház
Építőanyag: Tégla
Fűtés jellege: Cirkó
Komfort fokozat: Dupla komfort
Kor: 21-50 éves
Elhelyezkedés: Panorámás
Egész szobák: 5

Egyéb jellemzők

  • Csatorna
  • Garázs
  • Kábel TV
  • Padlás
  • Pince
  • Terasz